Descriptif
Fétigny, à vendre, terrain industriel équipé, avec permis en force !
Ce terrain idéalement placé à l'entrée du village de Fétigny, dans une zone industrielle, proche du village de Fétigny et de Payerne.
La demande de permis est en cours pour une halle multi-fonctions avec les caractéristiques suivantes.
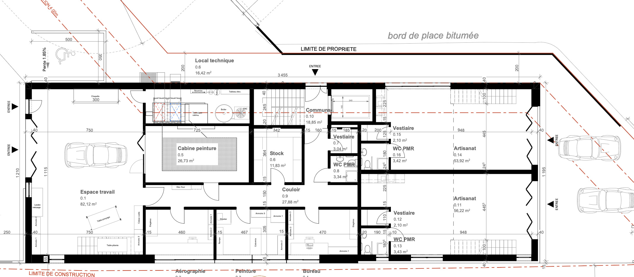
Au rez-de-chaussée :
- un espace dédié à l'artisanat, composé de plusieurs espaces avec une double hauteur (halle, bureaux, sanitaires, cafétéria, ...)
- deux surfaces "street-box" avec double hauteur et portes sectionnelles, avec WC et vestiaires
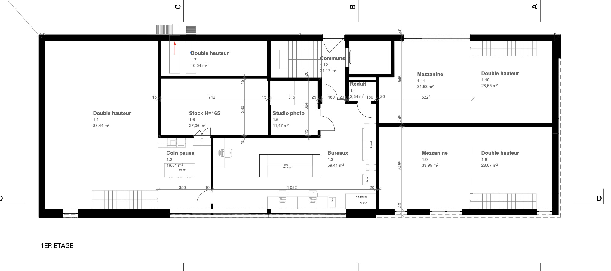
Au premier étage :
- plusieurs espaces ouverts et modulables
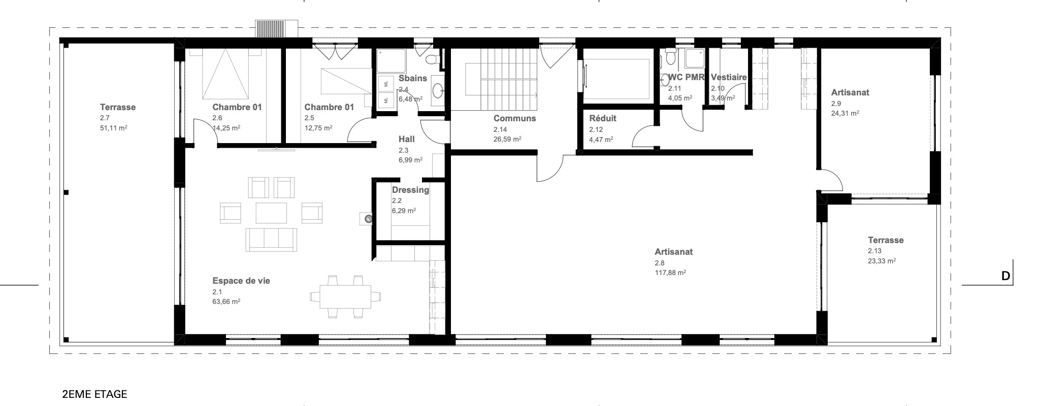
Au deuxième étage :
- un appartement modulable
- une surface "artisanale-service" pouvant être modulée
Chauffage avec pompe à chaleur, PV sur le toit.
Ce terrain est vendu avec un permis de construire en force, ainsi que toutes les taxes payée.
La construction pourra démarrer en début d'année 2026.
Plus d'infos sur :
www. montoit.ch ou au 079 238 99 44
Ce terrain idéalement placé à l'entrée du village de Fétigny, dans une zone industrielle, proche du village de Fétigny et de Payerne.
La demande de permis est en cours pour une halle multi-fonctions avec les caractéristiques suivantes.
Au rez-de-chaussée :
- un espace dédié à l'artisanat, composé de plusieurs espaces avec une double hauteur (halle, bureaux, sanitaires, cafétéria, ...)
- deux surfaces "street-box" avec double hauteur et portes sectionnelles, avec WC et vestiaires
Au premier étage :
- plusieurs espaces ouverts et modulables
Au deuxième étage :
- un appartement modulable
- une surface "artisanale-service" pouvant être modulée
Chauffage avec pompe à chaleur, PV sur le toit.
Ce terrain est vendu avec un permis de construire en force, ainsi que toutes les taxes payée.
La construction pourra démarrer en début d'année 2026.
Plus d'infos sur :
www. montoit.ch ou au 079 238 99 44
Commodités
Environnement
- Zone industrielle/commerciale
- Village
- Arrêt de bus
Equipement
- Raccordement à l'eau
- Raccordement électrique
- Terrain équipé
Exposition
- Sud
- Est
- Ouest
Ensoleillement
- Optimal
Distances
Transports publics
329 m
5'
5'
-
Ecole primaire
700 m
5'
-
-
Restaurants
1.02 km
15'
15'
1'











